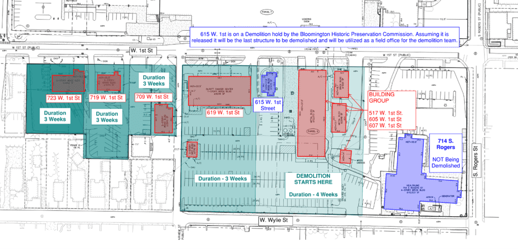
BLOOMINGTON – A demolition project is planned to prepare for creating the new Hopewell neighborhood. This project will not only pave the way for future development efforts but will also remove vacant structures that create security concerns for our neighbors.
The small structures will be manually demolished by a team of two to four individuals, reducing noise impact, vibration, and dust compared to other demolition techniques. Some demolition equipment already on site will be used, and no explosives are permitted. The team will work on one structure at a time, rather than all the buildings simultaneously, limiting the impact on surrounding areas. The buildings will be removed from east to west. Testing and material salvaging has begun, and demolition will begin on February 9th and last approximately 16-20 weeks.

The work associated with the Hopewell South Demolition Project is scheduled between 7:00 a.m. and 5:30 p.m., Monday through Friday, and will adhere to the Bloomington noise ordinance.
Only the existing structures are being removed as part of this project. All asphalt paving, concrete pads, and walks will remain for now. All surfaces will be appropriately graded to prevent drainage issues and prepare for future work. Certified contractors will do any necessary abatement.
The City of Bloomington has worked closely with our demolition contractor, Renascent, to plan and implement the Hopewell South Demolition Project after completing several recent demolition projects in the surrounding area, including the IUH Legacy Hospital site. As with all their projects, Renascent is working closely with the City of Bloomington to ensure the safety of our neighboring communities and businesses. Temporary construction fencing has already been installed to ensure safety during demolition.
Construction traffic will come and go from West 1st Street rather than other streets to minimize disruption to the neighborhood. No lane closures are planned, but future notifications will be posted if this changes.
The Renascent site contact for this work is Anthony Larsen. He can be reached at 317-457-0969 for the duration of this project. The Project Manager working on behalf of the City is Desma Belsaas with J.S. Held. Ms. Belsaas can be reached at 317-981-7257 if project concerns arise.
Officials apologize for any inconvenience this work may cause and look forward to working with the public to create a Better Blueprint for Bloomington.


